




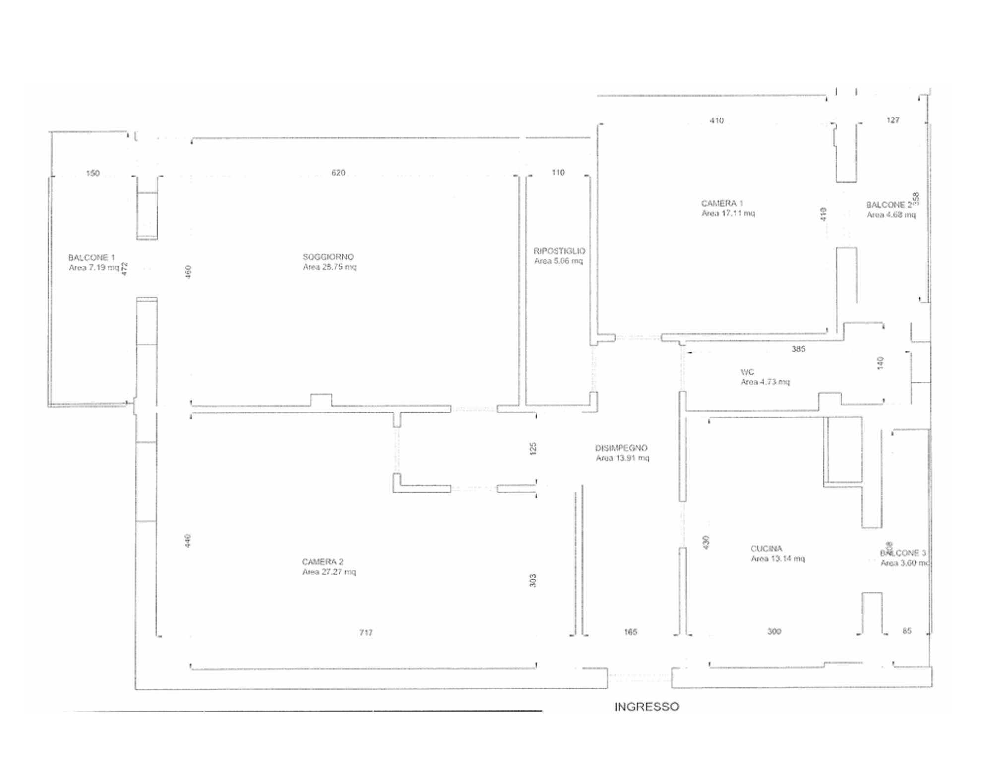
IN STABILE SIGNORILE DOTATO DI ASCENSORE PROPONIAMO AMPIO E LUMINOSO APPARTAMENTO POSTO AL 4° PIANO, SITUATO IN ZONA TRANQUILLA MA BEN SERVITA, A POCHI PASSI DA NUMEROSE ATTIVITÀ E COLLEGAMENTI. L’ABITAZIONE È COMPOSTA DA SOGGIORNO SPAZIOSO, DUE CAMERE DA LETTO,CUCINA ABITABILE,BAGNO E COMODO RIPOSTIGLIO. L’IMMOBILE GODE DI DOPPIA ESPOSIZIONE, CON AFFACCI SU VIA MAGGIORE MAZZARA E SU UN ATRIO INTERNO, GARANTENDO ECCELLENTE LUMINOSITÀ E UNA PIACEVOLE VENTILAZIONE NATURALE. LA SOLUZIONE È LIBERA E IMMEDIATAMENTE DISPONIBILE, IDEALE PER CHI CERCA UNA CASA FUNZIONALE, IN UN CONTESTO CURATO E DALL’ATMOSFERA RISERVATA.
RICHIEDI INFORMAZIONI
Sei interessato a visionare questo immobile, o desideri semplicemente ricevere maggiori informazioni? Compila questo form e verrai contattato da un Consulente Immobiliare professionista entro poche ore.
© 2026 CaseInsieme | Il primo portale per vendere e acquistare casa a Molfetta | Privacy Policy - Cookie Policy