




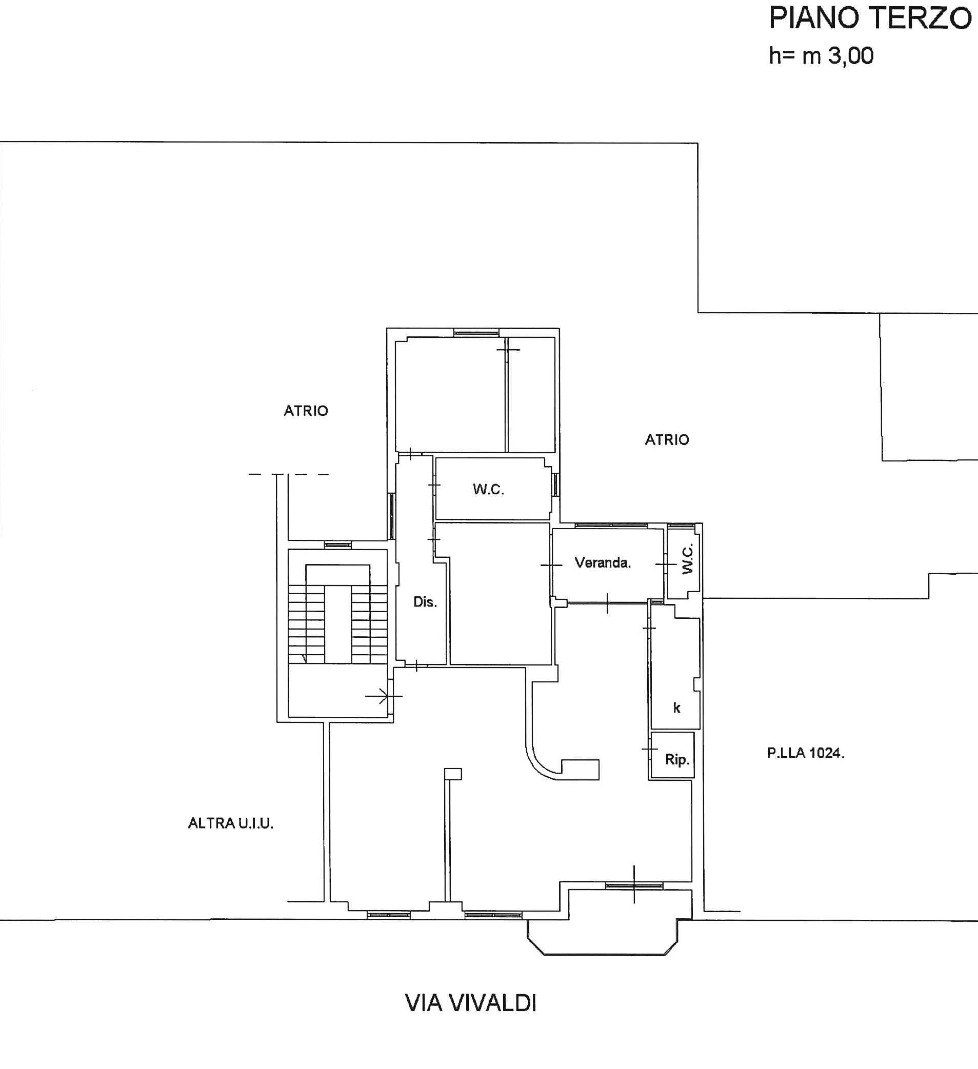
... AMPIO... LUMINOSO... RIFINITO... PRESTIGIOSO APPARTAMENTO!!! IN ZONA CENTRO LEVANTE (IN PROSSIMITÀ DEL SEMINARIO REGIONALE) VENDIAMO RIFINITO APPARTAMENTO DI 4 VANI ED ACCESSORI COMPOSTO DA: INGRESSO - AMPIO SALONE - CUCININO - ZONA PRANZO - NR. 3 CAMERE DA LETTO - NR. 2 BAGNI - RIPOSTIGLIO... L'APPARTAMENTO CHE SI APPALESA IN CONDIZIONI PERFETTE!!! SARÀ CONSEGNATO CON ARREDI PARZIALI FUNZIONALI AL GODIMENTO DELL'IMMOBILE STESSO... SE CERCHI UNA CASA FINEMENTE RISTRUTTURATA IN CUI VUOI GODERE DI TRANQUILLITÀ SEPPUR VICINO AL CENTRO URBANO!? ... BEH È GIUNTA L'ORA DI FARE UN PASSO AVANTI!!!!
RICHIEDI INFORMAZIONI
Sei interessato a visionare questo immobile, o desideri semplicemente ricevere maggiori informazioni? Compila questo form e verrai contattato da un Consulente Immobiliare professionista entro poche ore.
© 2026 CaseInsieme | Il primo portale per vendere e acquistare casa a Molfetta | Privacy Policy - Cookie Policy