




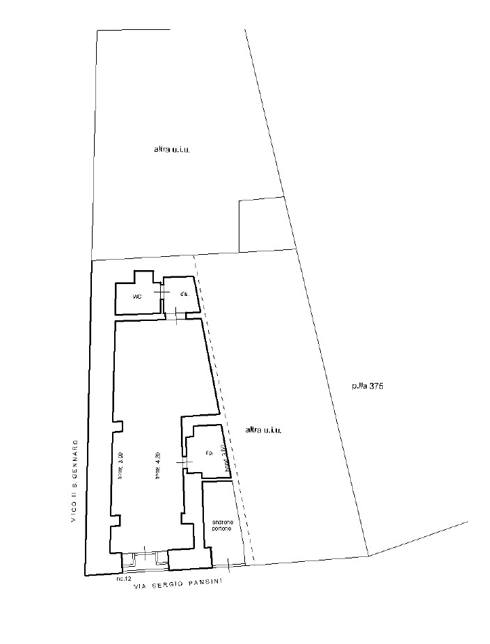
... IN PROSSIMITÀ DI PIAZZA SANTA TERESA E PRECISAMENTE IN VIA SERGIO PANSINI PROPONIAMO IN LOCAZIONE LOCALE COMMERCIALE MONOVANO CON ENTROSTANTI BAGNO E NR. 2 RIPOSITIGLI. PER COMPLESSIVI 60 MQ. L'IMMOBILE È STATO OGGETTO DI PICCOLI INTERVENTI DI MANUTENZIONE OVVERO: 1) RIFACIMENTO BAGNO; 2) PITTURAZIONE INTERNA E SERRANDA; PERALTRO È DISPONIBILE PAVIMENTAZIONE NUOVA DA SOVRAPPORRE QUALORA IL CLIENTE LO RICHIEDA... LIBERO SUBITO!!!!
RICHIEDI INFORMAZIONI
Sei interessato a visionare questo immobile, o desideri semplicemente ricevere maggiori informazioni? Compila questo form e verrai contattato da un Consulente Immobiliare professionista entro poche ore.
© 2026 CaseInsieme | Il primo portale per vendere e acquistare casa a Molfetta | Privacy Policy - Cookie Policy